REQUEST A TOUR If you would like to see this home without being there in person, select the "Virtual Tour" option and your agent will contact you to discuss available opportunities.
In-PersonVirtual Tour

$ 4,999,000
Est. payment | /mo
0.53 Acres Lot
$ 4,999,000
Est. payment | /mo
0.53 Acres Lot
Key Details
Property Type Commercial
Sub Type Multi Family
Listing Status Active
Purchase Type Asset or Share
MLS Listing ID C8073953
Lot Size 0.530 Acres
Property Sub-Type Multi Family
Property Description
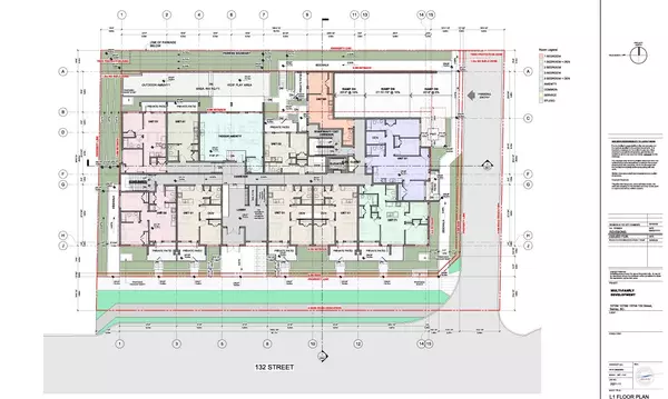
Prime TOA Development Site - 10728, 10738 & 10748 132 Street, Surrey Central. Exceptional Transit-Oriented Area opportunity in Surrey City Centre. This rare land assembly includes three combined properties located within 400m of the SkyTrain station and is ideal for condo development. A development application as been submitted to City Hall proposing: 85 residential units. Up to 8 storeys. Over 60,000 sq.ft. buildable area. 76 parking stalls. A strong opportunity for developers and investors in one of Metro Vancouver's fastest-growing urban cores, Great price! Buy and hold or build right away.
Location
Province BC
Community Whalley
Area North Surrey
Zoning CD
Interior
Heating Forced Air
Cooling Forced Air
Exterior
Fence Fenced
Utilities Available Cable Connected, Electricity Connected, Fully Serviced, Garbage Collection, Natural Gas Connected, Phone Connected
Roof Type Asphalt
Building
Sewer Public Sewer, Storm Sewer
Water Public
Others
Ownership Freehold


"My job is to find and attract mastery-based agents to the office, protect the culture, and make sure everyone is happy! "
# 500 666 Burrard Street, Vancouver, Columbia, V6C3P6, Canada






